Проект Лыжной базы
| Продавец | Продано | Возвратов | Отзывы | ||
|---|---|---|---|---|---|
| umzn | 0 | 0 |
|
||
₽ 4 465.00
Описание
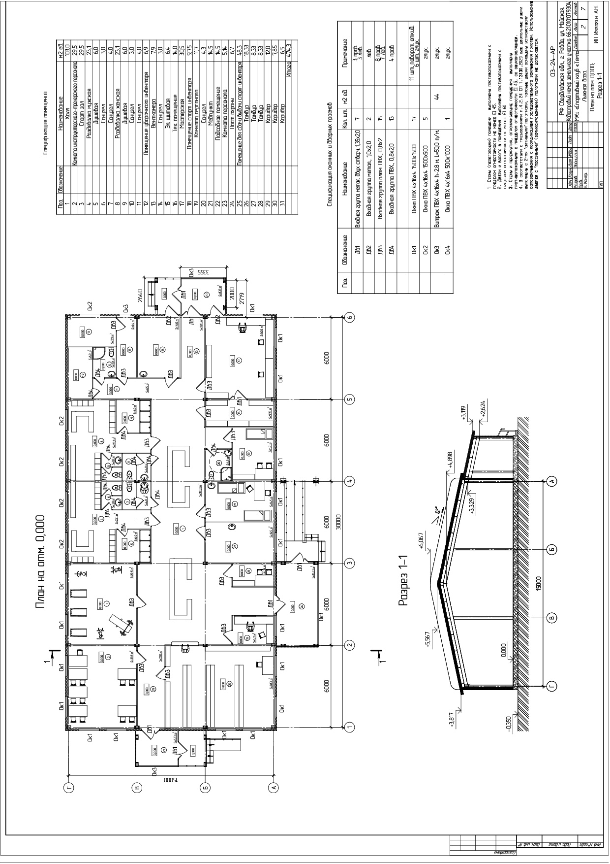
Альбомы рабочей исполнительной документации на здание лыжной базы из металлического каркаса и сэндвич панелей, разделы: ПЗ(пояснительная записка) АР( архитектурные решения, фасады), КР:КМ(конструкции металлические метал каркас) КЖ (конструкции жби), ПОС(Проект организации строительства), ПЗУ с объемами спецификации на материал в формате pdf, cdw.
Дополнительное описание